設計概念
DESIGN CONCEPT
在業主完全放手、全力支持的前提下,這件作品在格局與材料上都有獨特的嘗試:
1.將起居與睡覺分開——別館的誕生
男主人在家辦公、週末假日生活起居、親友來訪、女主人延伸的衣物儲藏功能,是這個住家的主要機能,由於不用負擔「睡覺」功能,臥室集中在鄰近的另一個住家空間,因此面對極佳的室外景觀,這個案件享有更多發展的餘裕與可能性。
2.以創新思維嘗試我沒有用過的材料
面對這個可能性極大、景觀綠意極佳的潛力案件,從業至今始終沒有用過的「大理石」第一次在設計階段中浮現,而且是特定的一款——在藝術博覽會曾見過,彷彿在樹隙中透著天光的天使之星,在這樣充滿綠意的環境,只有這塊大理石可以將自然延續到室內,也只有這樣條件的空間,有足夠的餘裕展現天使之星的氣魄與蘊含深厚歷史感的內涵。而如何讓硬邦邦的大理石成為我設計中滑順的圓弧牆面,感謝師傅願意嘗試我的做法,克服萬難完成了這道美麗弧牆。
為了更好的襯托呼應圓弧主牆,不管是宏庚的訂製木皮、光膜、鮮少使用的造型線板、曲面玻璃,到崁燈、主吊燈與立燈燈具的選擇,還有與得利塗料麂皮藝術漆的合作,對我來說都是很有意義的嘗試,也呈現出更細膩的空間質地。
十個月的工期其實並不順利,除了老屋常見問題、前一手裝修遺留下來的離譜現狀外,還有許多不合理的內規干預正常施工,但在業主強力護衛下,感謝師傅們高度配合、用心付出,我們終究還是完成了這美好的一役。
沐浴在光中,不只是窗外的日光,而是人與人之間美好良善的光輝,存在業主一家人的支持、各工班師傅的努力以及每天看顧在工地、用心招呼著大家的于瑄,沐浴在每個靈魂用心澆灌的愛中,這個空間才能閃耀著幸福的光彩。
作品欣賞
GALLERY

整體配置
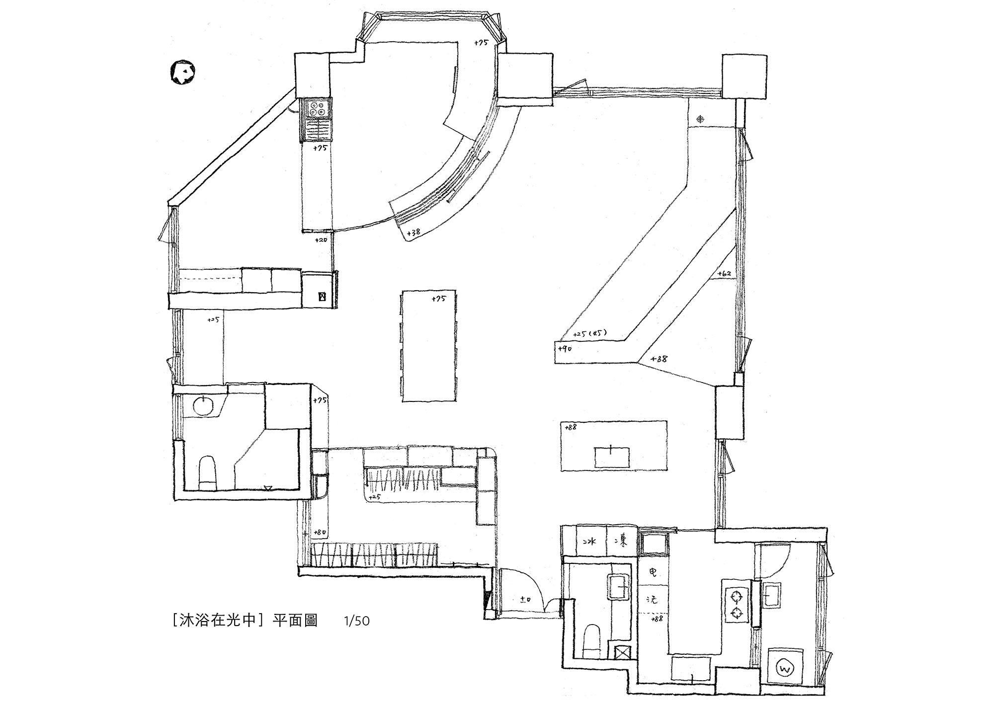
改善通風,原本我就希望能打通東南與西北向,女主人更衣儲藏間因使用特性考量設置在靠近門口,跟廚房中島配置在同一區,服務動線集中,降低對客餐廳的影響;男主人書房、小孩遊憩區剛好可以藏於弧形電視牆後方,讓公共空間有效統整在一起,有效達成三面通風採光。 沒有「床架尺寸」的需要,書房與小孩休憩區便可更彈性地配合空間特性進行規劃,才會有圓弧書房與梯形遊憩區的誕生。 我希望在空間中的人不用特意「轉身」找景色,在每個不經意的抬頭即可被綠意療癒,因此在規劃廚房輕食區、餐廳、客廳的配置時下了很大的功夫。 其中最難的是電視牆與沙發(座椅平台)的位置,我將座椅平台打斜,讓坐在上面的人很自然可以面對窗外綠意,打斜後座椅平台後方便出現一個畸零地,非常適合作成舒適的角落空間,寬敞的休憩平台直接入窗,強調室外延伸感。由於在此平台上可以看到全家,卻又有沙發背牆保護,不容易被賓客或外人看到,安全又寬敞,因此深受小孩喜愛。 對應打斜的沙發,電視牆我以圓弧取代斜面,以書房內牆角為圓心,383公分半徑的圓弧牆緩而流暢,可以很好地將戶外景色「流轉」進室內。 全室一共有三個大小不同的休憩平台角:書房旁的小孩遊憩區、沙發座椅平台旁的休憩平台以及餐廳端景平台,對應每個人當下需要,都可以找到舒服窩著的角落。

天使之星
雖然設計階段就想過是不是可能用心儀已久的承豪石材天使之星來做,但當時對於怎麼做弧面還沒有想法,擔心可能會是天價,因此退而求其次,以特殊塗料做圓弧牆的備案,也是不錯的效果。2024年十月初,我突然想到因為我們的弧很緩,如果石材夠厚,也許有機會利用厚度削切成弧面,分成幾片接成一整道弧牆,剛好得知承豪石材在世貿有展位,我便拉著同事到展櫃,一方面再次確認自己對於石材的心意,一方面也希望能直接跟昱愷確認我的想法是否可行。在我原本的設想,一般厚度兩公分的石材可能不夠偷弧面,也許要用到2.5或3公分厚的石材板才夠,一方面不知道天使之星有沒有這種厚度的板材,另一方面也不知道這樣費用會不會很高⋯畢竟二十年來我的大理石經驗只有高中地科社的地質研究以及廁所的大理石門檻,因此對於自己的突發奇想感到有些忐忑。感謝昱愷與同事的用心,他們配合的石材加工黃朝全大哥高度專業、非常厲害,第一次做出來的樣品就令我讚嘆不已,只要分六片,厚度兩公分的石板即可完成我們現場所需的弧度!再搭配他們獨特的石材打光設計(重點是還可以維修),我設計時想像的大理石弧牆即可成真!美好的事物都是需要細心呵護的,從立角鋼結構、木作弧牆、上LED燈、玻璃底材到正式安裝大理石,三天的美容工程,感謝每個環節的精準銜接、所有師傅的努力與用心投注,我們完成了這道不可思議的大理石弧牆!











































































