設計概念
DESIGN CONCEPT
一家四口,女主人細膩敏銳,為了寬廣舒適的空間感、提供孩子自在活動伸展的公共區域,願意配合各種調整,不管是最高彈性變化隔件、可以面對客廳開敞的小孩臥鋪空間,或是犧牲收納空間改裝室內體操架,每次看他為求顧全、盡可能讓設計更完美,各種面向的費心思量、努力堅持、決意付出,我總提醒他要為自己多留一點餘裕;男主人淡定隨和,始終支持著女主人,一家人同心齊力,堅持守護我們的設計,在這樣特別的狀態下,這個案件有許多初次嘗試的設計亮點。真心感謝從2021年接觸、2022年客變到2025年室內完工,四年的合作,希望業主一家生活有味、平靜中穩定的力量源源不絕。
作品欣賞
GALLERY
全部
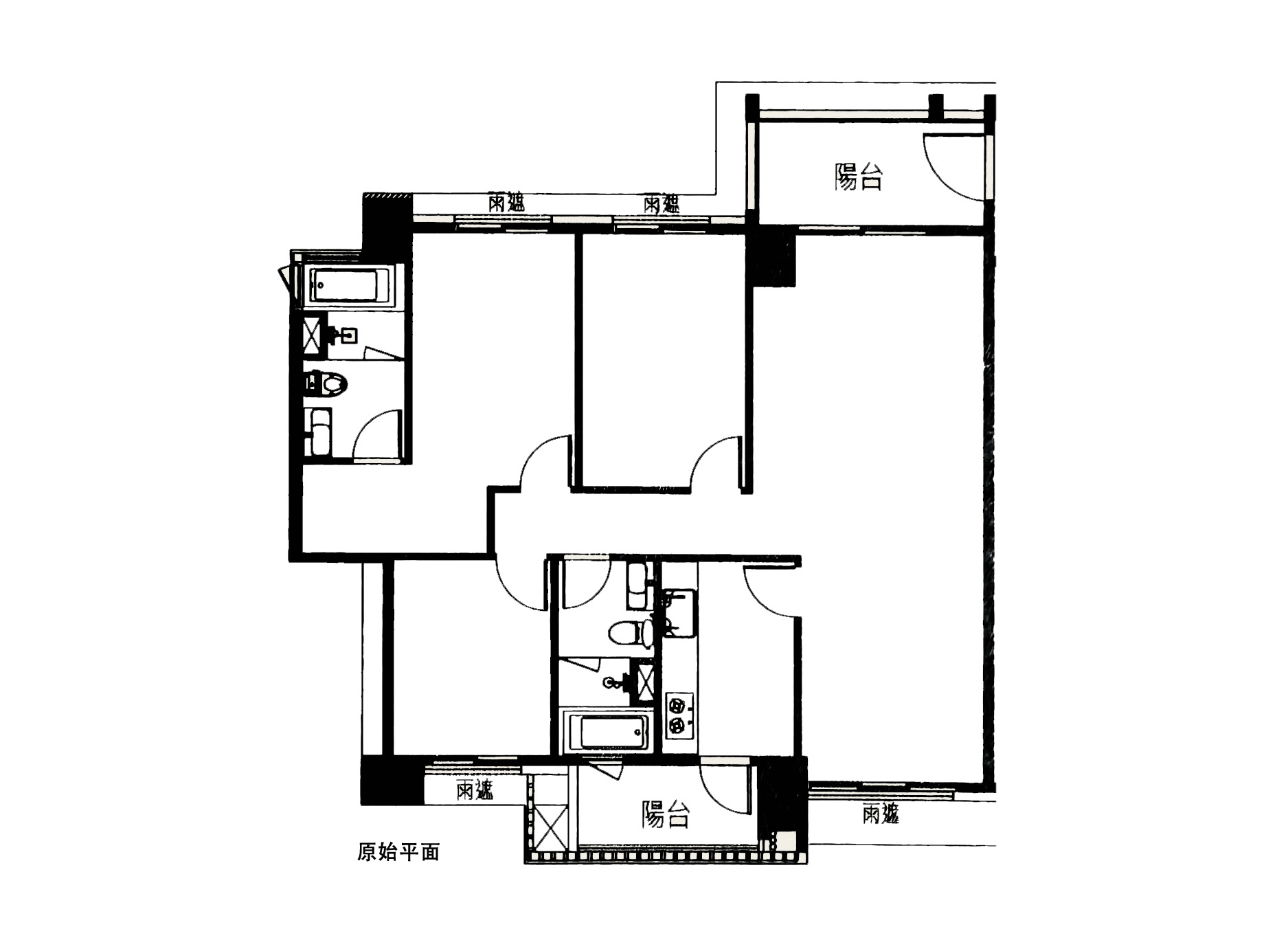
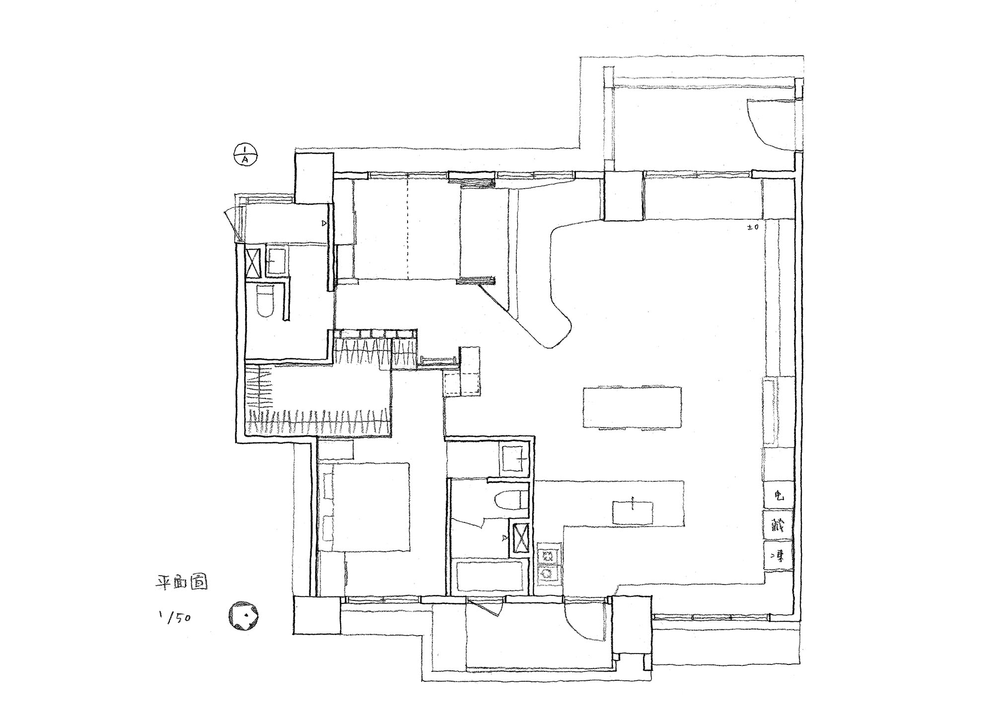
整體配置
客餐廳
音樂角落
收納
廚房
餐桌設計
工作小車
興趣分享區
孩童臥舖區
主臥
衛浴
載入更多


































































