之間
個性之間、關係之間、習慣之間、行為之間、空間之間,環環相扣卻又不能扣緊,必須留出足夠的餘裕與彈性,才能成就如此鬆柔寬敞的「之間」。感謝業主充分尊重並想盡辦法實現完整的設計,從2022年七月第一次接觸,歷經設計期的磨合、驗屋階段的小插曲、施工過程中的來回確認,到2026年三月開心交屋,看著業主入住後滿足的回饋,真的很為他開心。從整體空間格局、立面設計到內灣吊橋的淺浮雕,這個空間是我對業主一家最深的祝福,祈願一切順心如意。
設計概念
DESIGN CONCEPT
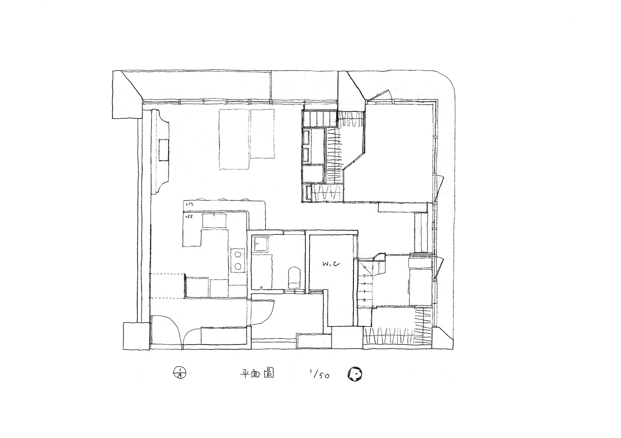
平面格局在客變階段便由采元完成規劃變更,業主一家率性自在,沒有太多成見框架,平常各自用餐,因此餐桌便轉換為吧台形式,讓我們可以在有限條件下爭取最寬敞的開放式廚房。男主人書房區與客廳合併,升降工作桌面可依照需要靈活作為餐桌使用。為因應各種彈性變化的需要,特別設計搭配地昇幕與超短焦投影機的活動視聽車,極大化公共區域的使用自由度。
男主人熱愛吉他,在需求會議時便提出希望有個專屬他的秘密基地——Man Cave。考量男主人的日常動線,Man Cave最理想的位置便是男主人書桌後方空間,因此我整合了吉他收納櫃、工具儲物小間、多功能事務機專用櫃以及秘密臥鋪角落,打造出最理想舒適的男主人專屬基地!
孩臥也在需求會議時便提出希望打造有階梯踏階的臥鋪空間,我將更衣間與臥鋪整合在一起,希望直到孩子長大成人都會喜愛這個有趣溫馨的房間!主臥由於已有現成家具,因此只針對衣物部分進行收納設計。
整個空間組織打破一般住家客廳、餐廳、臥室的框架,對應著業主一家人獨特的生活習慣,成為他們家最美的樣貌。
作品欣賞
GALLERY

整體配置
平面格局在客變階段便由采元完成規劃變更,業主一家率性自在,沒有太多成見框架,平常各自用餐,因此餐桌便轉換為吧台形式,讓我們有機會在有限條件下爭取最寬敞的開放式廚房。男主人書桌區與客廳合併,升降工作桌面可依照需要靈活作為餐桌使用。為因應各種彈性變化的需要,特別設計搭配地昇幕與超短焦投影機的活動視聽車,極大化公共區域的使用自由度。 男主人熱愛吉他,在需求會議時便提出希望有個專屬他的秘密基地——Man Cave。考量男主人的日常動線,Man Cave最理想的位置便是男主人工作桌後方空間,因此我整合了吉他收納櫃、工具儲物小間、多功能事務機專用櫃以及秘密臥鋪角落,打造出最理想舒適的男主人專屬基地! 孩臥也在需求會議時便提出希望打造有階梯踏階的臥鋪空間,我將更衣間與臥鋪整合在一起,希望直到孩子長大成人都會喜愛這個有趣溫馨的房間!主臥由於已有現成家具,因此只針對衣物部分進行收納設計。




























































